P1310003 (Web).JPG

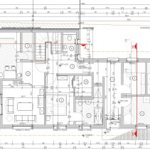
Neubau eines EFH (1) in Bielen

Ein schmales Grundstück, angrenzenden Nachbarbebauung - nicht die besten Voraussetzung zum Bau eines neuen Wohnhauses, aber eine interessante und anspruchsvolle Planungsaufgabe. Die Lösung hat die Bauherren überzeugt. Unsere Leistungen: Gebäudplanung, Tragwerksplanung, Ausschreibung und Bauleitung Rohbau

Ausführungszeitraum: 2013 - 2014
Auftraggeber: Privat
Gesamtinvestition: 225.000 EUR