IMG_20160216_094129 (Web).jpg

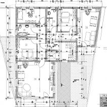
Neubau Mehrfamilienhaus Rosengasse Nordhausen

Neubau eines Mehrfamilienhauses in der Rosengasse, Nordhausen. Schaffung von 5 Wohneinheiten sowie einer Tiefgarage und den dazugehörigen Außenanlagen. Unsere Leistungen: Gebäudeplanung und Tragwerksplanung.

Ausführungszeitraum: 2015 - 2016
Auftraggeber: Privat
Gesamtinvestition: 2 Mio EUR