
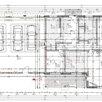
Neubau eines EFH (2) in Bielen
Dieses moderne Wohnhaus bietet 2 Wohneinheiten Platz. Es besitzt zudem eine Garage, welche 4 Stellplätze aufweist. Ein großer, freundlicher Garten rundet das Ensemble ab.
Leistungen: Gebäudeplanung, Tragwerksplanung, Ausschreibung und Bauleitung Rohbauarbeiten.
Ausführungszeitraum: 2020
Auftraggeber: Privat
Gesamtinvestition: 350.000 EUR
Auftraggeber: Privat
Gesamtinvestition: 350.000 EUR









zu Projekten | Startseite