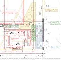
Grundriss.JPG

Umbau eines Melkstandes für Melkroboter

Ziel dieser Planung waren die Bauleitungen für die Anordnung neuer Melkroboter in einem vorhandenen Stall. 

Ausführungszeitraum: 2016
Auftraggeber: Privat
Gesamtinvestition: -/-